HD Type European Hoist Electric Single-Gear Overhead Crane

HD Type European Hoist Electric Single-Gear Overhead Crane

European Single Girder Overhead Crane er kompakt løftemaskiner designet og fremstillet i overensstemmelse med FEM og DIN standard, som med avanceret teknologi og smukt design. Opdelt i almindelig type og suspension type, der understøtter brugen af europæisk standard elektrisk hejsning, egnet til værksted og lagerhåndtering, store dele præcisionsmontering og andre steder.
Chat nu

Produktdetaljer

HD Type European Hoist Electric Single-Gear Overhead Crane

Kort beskrivelse:

European Single Girder Overhead Crane er kompakt løftemaskiner designet og fremstillet i overensstemmelse med FEM og DIN standard, som med avanceret teknologi og smukt design. Opdelt i almindelig type og suspension type, der understøtter brugen af europæisk standard elektrisk hejsning, egnet til værksted og lagerhåndtering, store dele præcisionsmontering og andre steder.


image.png


Det kunne meget udbredes inden for fremstilling af maskiner, metallurgi, petroleum, petrifaction, havn, jernbane, civil luftfart, mad, papirfremstilling, konstruktion, elektronikindustriens værksted, lager og andre materielle håndteringssituationer, esp. Anvendes til materialehåndtering, der kræver præcis positionering, store komponenter præcise monteringssituation.


Single-girder Overhead Crane.png

Detaljerede billeder:

Single-girder Overhead Crane.png

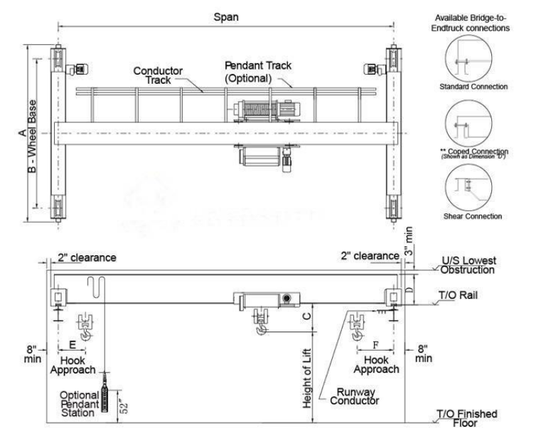
Skitse Tegning:

Single-girder Overhead Crane.png

Tekniske parametre:


span

m

7.5

10.5

13.5

16,5

19.5

22.5

25,5

Kapacitet

t

1 ~ 12.5t

Totalvægt

kg

1781 ~ 12086

Vognvægt

kg

405 ~ 740

Maks. Hjulbelastning

kn

13.5 ~ 90,94

Rejseskinne

P24 ~ P43

Løftehastighed

m / min

0,8 / 5

0,8 / 5

0,8 / 5

0,8 / 5

0,8 / 5

0,8 / 5

0,8 / 5

Løftehøjde

m

≥ 6

≥ 6

≥ 6

≥ 6

≥ 6

≥ 6

≥ 6

Total motorkraft

kw

4,31

4,31

4,31

4,31

4,67

4,67

4,67

Kranhastighed

m / min

3-30

3-30

3-30

3-30

3-30

3-30

3-30

Vognhastighed

m / min

2-20

2-20

2-20

2-20

2-20

2-20

2-20

Arbejdstjeneste

M5 / A5



包装运输.jpg

Undersøgelse